Haven 432

Ready to Install

$170,500*

Footprint

432sq ft

Dimensions

12’ W x 36’ L x11’ H

*Typical Excavation, Foundation, Utility, Delivery, and Installation Cost $20,000 - $35,000

* Prices do not include taxes

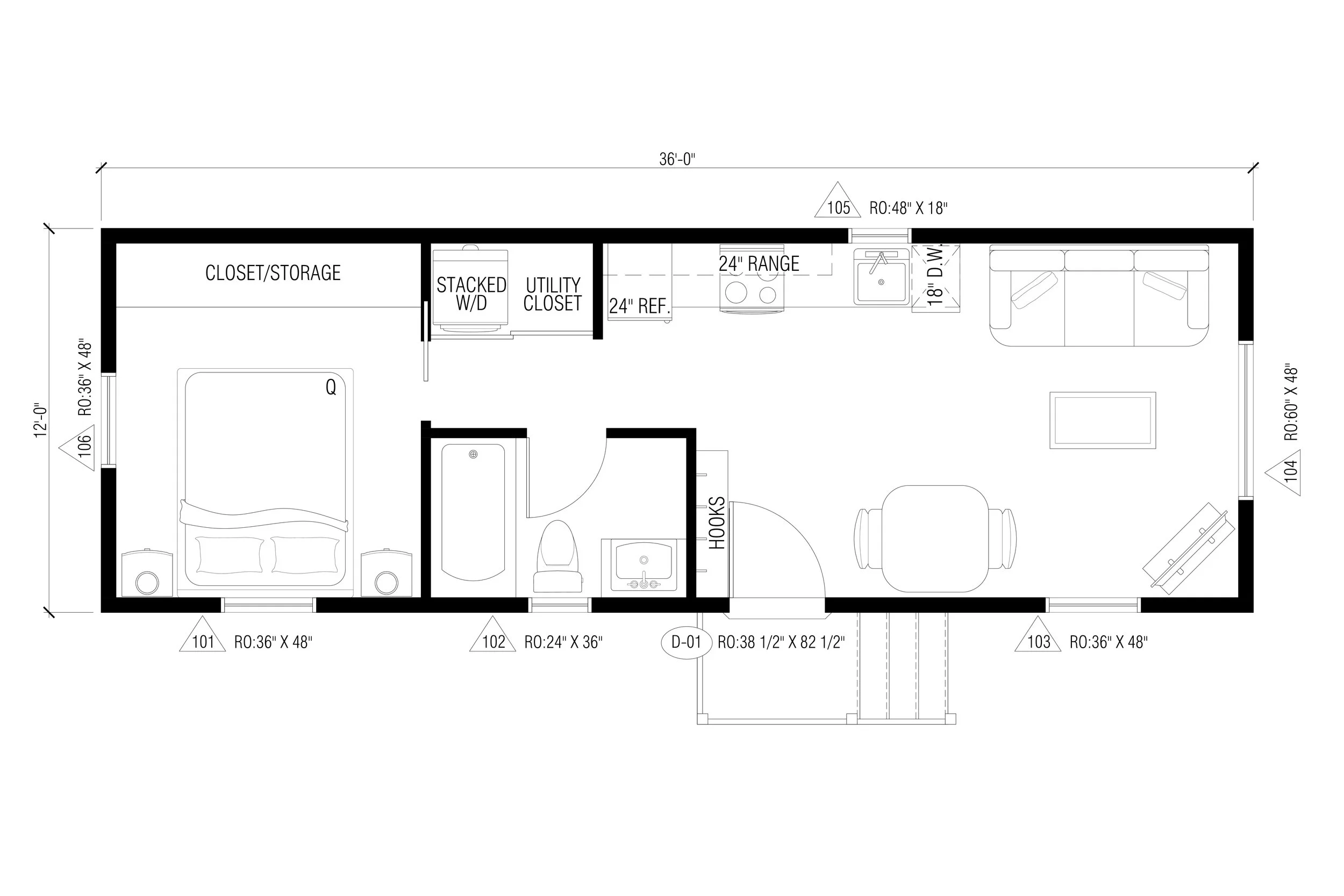
Introducing our 1-Bedroom Modular Home, thoughtfully designed to offer comfort and functionality. It features a full bathroom complete with a tub, vanity, and toilet, and includes a convenient laundry area with a washer and dryer. The modern kitchen is equipped with a fridge, sink, range, and dishwasher, ensuring you have everything you need for everyday living. Heating options include electric baseboards or an optional heat pump, while on-demand electric hot water and the Lunos E2 HRV system provide energy efficiency and fresh air circulation.

  • 1 Bedroom
    Bathroom - Tub, Vanity, Toilet
    Laundry - Washer and Dryer
    Kitchen - Fridge, Sink, Range, Dishwasher
    Heat: Electric baseboard or optional heat pump
    Hot water - On-demand Electric
    HRV- Lunos E2

    Concrete / rebar / vapour barrier / anchors for foundation

    Perimeter drains, rain water leaders and soak away pit for drainage

    Quick connect utility dry well and insulated cover

  • LVL Rim Joist, 2x10 Joists 16” o/c, ½ ply bottom. ¾ ply subfloor, R40 insulation

    2x6 Studs, 24"o/c, 1/2" Ply sheeting, R22 Insulation

    2x12 Rafters, 24" o/c, 5/8" T&G sheeting, R40 insulation

    2x4 interior walls, Safe & Sound Insulation

  • Corrugated metal Siding

    Aluminum Soffit

    Metal Flashing

    2-ply torch-on roofing

    Western Red Cedar Fascia, Corners and window trims

    Western Red Cedar highlight walls at entrances

    Metal Clad, PVC Lux Windows and Patio doors, Triple glazed, very high efficiency

    Insulated FG Entry door with metal jamb, brickmold and sill, half light with shade.

    Imperial R4 Heavy Duty metal Vents

    4” Led soffit lights

    Entry Landing(s)

    Heavy Duty Awning(s) over Entrance(s)

  • Drywall / painted walls

    1x6 Pine T&G ceiling

    Floating, click together commercial PVC flooring

    Plywood cabinets and solid wood drawers and doors.

    Quartz countertops

    Solid Core Shaker Doors

    Solid Wood Window Sills with drywall returns

    Paint or Stain Grade Trim

  • Electric Heat on demand Hot water.

    Optional heat pump

    HRV

    Digital / Programmable Controls

  • Range

    Fridge

    Washer / Dryer Combo

    Dishwasher

  • 30” x 60” 1 piece Acrylic Tub and Surround

    High Efficiency Toilet

    28” Stainless Kitchen Sink

    Moen Faucets

Eco-Friendly
& Energy Efficiency

Embrace true sustainability with Earthwright. Our eco-conscious building practices and energy-efficient designs ensure a smaller environmental footprint and reduced energy costs for your home.

Fixed Price Construction:

Thanks to our modular building approach, Earthwright guarantees fixed pricing. Experience peace of mind with no surprises or unexpected costs during the construction process.

Innovative Property Share Solutions

Addressing the housing market challenges, Earthwright offers property share solutions. Our modular homes present a practical and profitable way to maximize land use and provide affordable housing options.

Begin your journey towards sustainable property investment.

Embrace a new way of living with Earthwright Shelters – where efficiency, sustainability, and quality converge to create the ideal modern home. Contact us to explore how we can transform your vision of home into a beautiful reality.

Previous
Previous

Haven 400

Next
Next

Haven 760